Genehmigungspläne des Einfamilienhauses


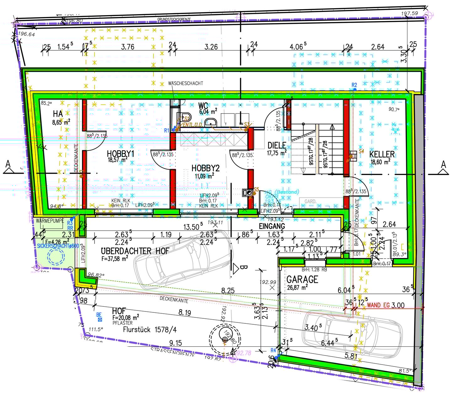
Kellergeschoss (UG) – Genehmigter Grundriss
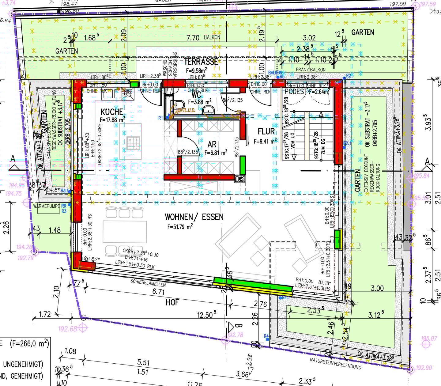
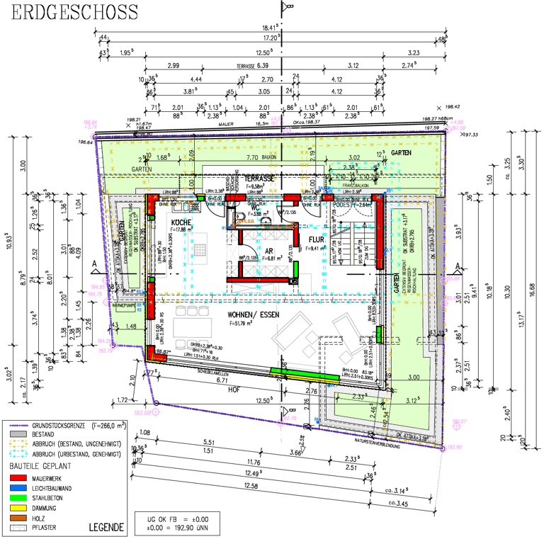
Das Erdgeschoss bildet den zentralen Wohn- und Essbereich des Hauses mit direktem Zugang zur Terrasse und in den Garten. Die Küche ist in unmittelbarer Nähe angeordnet und funktional in den Grundriss integriert.
Ergänzt wird das Raumangebot durch einen Abstellraum, der alternativ als Speisekammer genutzt werden kann, einen Flurbereich mit Platz für eine Garderobe sowie ein Gäste-WC. Die Erschließung ist klar und übersichtlich organisiert, der Übergang zu den Außenflächen ist barrierearm gestaltet.
















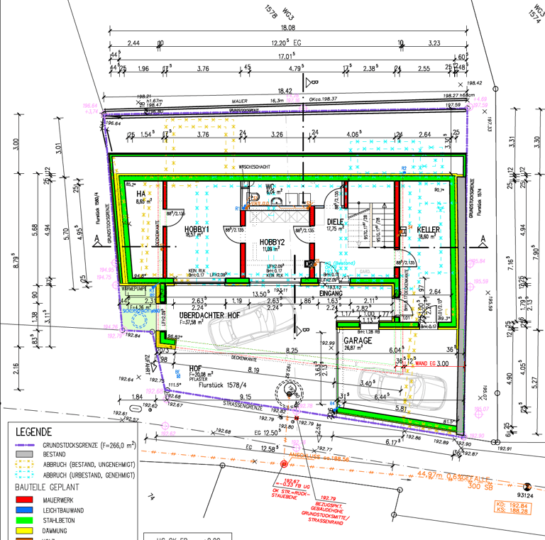
Das Untergeschoss umfasst funktionale Nutzräume sowie zwei großzügige Hobbyräume mit natürlichem Tageslicht. Zusätzlich sind ein Hausanschluss- und ein Technikraum vorgesehen.
Die Anordnung der Räume ermöglicht eine flexible Nutzung, beispielsweise als Arbeits-, Hobby- oder Abstellflächen. Ein integrierter Garage-und-Haus-Zugang sorgt für kurze Wege und zusätzlichen Komfort. Der Zugang ins Haus ist witterungsgeschützt über die Garage möglich.
Genehmigte Planung
Für das Einfamilienhaus liegt eine vollständig ausgearbeitete und genehmigte Planung vor.
Die Ausführung ist detailliert vorbereitet, alle statischen Nachweise sind abgeschlossen.
Die Architektur nutzt die Hanglage optimal aus und schafft großzügige, gut belichtete Wohnbereiche mit klaren Grundrissen. Die Planung ist auf ein funktionales und familiengerechtes Wohnen ausgelegt.
Alle dargestellten Grundrisse, Schnitte und Ansichten entsprechen dem genehmigten Stand.
Der Weiterbau kann auf dieser Grundlage ohne Verzögerung erfolgen.
Erdgeschoss (EG) – Genehmigter Grundriss
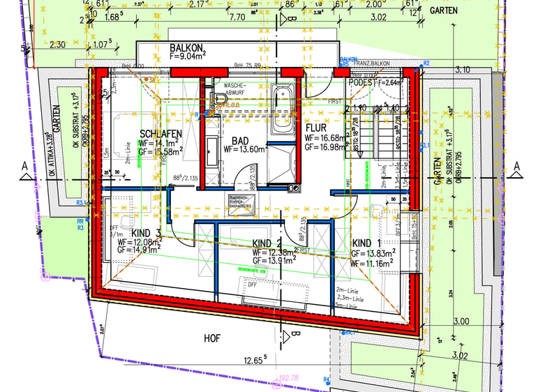
Dachgeschoss (DG) – Genehmigter Grundriss
Das Dachgeschoss umfasst das Elternschlafzimmer mit Zugang zum Balkon sowie zwei weitere Zimmer, die flexibel als Kinder-, Gäste- oder Arbeitszimmer genutzt werden können.
Ein zentral angeordnetes Badezimmer mit Badewanne und Dusche ist vorgesehen. Die kompakte Flurführung ermöglicht kurze Wege und eine effiziente Organisation der privaten Räume.
Darstellung gemäß genehmigtem Planstand.
Darstellung gemäß genehmigtem Planstand.
Darstellung gemäß genehmigtem Planstand.
Gebäudeansichten – genehmigter Planstand
Die folgenden Ansichten zeigen das genehmigte Erscheinungsbild des Einfamilienhauses aus allen relevanten Blickrichtungen. Dargestellt sind Gebäudeform, Dachgestaltung, Fassadenstruktur sowie die Einbindung in das Gelände.
Darstellung gemäß genehmigtem Planstand.
SO-Ansicht (genehmigt)
SW-Ansicht (genehmigt)
NW-Ansicht (genehmigt)
NO-Ansicht (genehmigt)
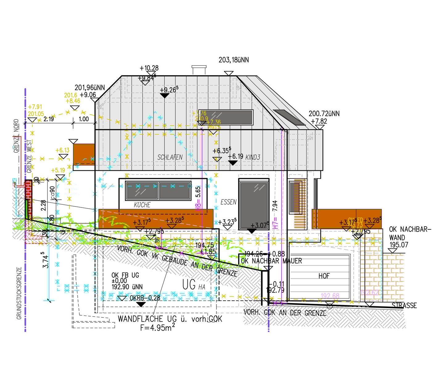
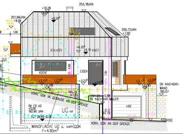
Gebäudeschnitte – genehmigter Planstand
Die Schnitte zeigen die genehmigte Höhenentwicklung des Gebäudes sowie die Staffelung der Geschosse in Relation zur Hanglage.
Dargestellt sind Geschosshöhen, Dachform, Geländeverlauf und die konstruktive Einbindung des Baukörpers in das Grundstück.
Alle dargestellten Schnitte entsprechen dem genehmigten Planstand.
Schnitt BB (genehmigt)
Schnitt AA (genehmigt)
Genehmigungspläne des Einfamilienhauses


















Genehmigte Planung
Für das Einfamilienhaus liegt eine vollständig ausgearbeitete und genehmigte Planung vor.
Die Ausführung ist detailliert vorbereitet, alle statischen Nachweise sind abgeschlossen.
Die Architektur nutzt die Hanglage optimal aus und schafft großzügige, gut belichtete Wohnbereiche mit klaren Grundrissen. Die Planung ist auf ein funktionales und familiengerechtes Wohnen ausgelegt.
Alle dargestellten Grundrisse, Schnitte und Ansichten entsprechen dem genehmigten Stand.
Der Weiterbau kann auf dieser Grundlage ohne Verzögerung erfolgen.
Erdgeschoss (EG) – Genehmigter Grundriss
Dachgeschoss (DG) – Genehmigter Grundriss
Das Dachgeschoss umfasst das Elternschlafzimmer mit Zugang zum Balkon sowie zwei weitere Zimmer, die flexibel als Kinder-, Gäste- oder Arbeitszimmer genutzt werden können.
Ein zentral angeordnetes Badezimmer mit Badewanne und Dusche ist vorgesehen. Die kompakte Flurführung ermöglicht kurze Wege und eine effiziente Organisation der privaten Räume.
Darstellung gemäß genehmigtem Planstand.
Darstellung gemäß genehmigtem Planstand.
Gebäudeansichten
Die folgenden Ansichten zeigen das genehmigte Erscheinungsbild des Einfamilienhauses aus allen relevanten Blickrichtungen. Dargestellt sind Gebäudeform, Dachgestaltung, Fassadenstruktur sowie die Einbindung in das Gelände.
Darstellung gemäß genehmigtem Planstand.
SO-Ansicht (genehmigt)
SW-Ansicht (genehmigt)
NW-Ansicht (genehmigt)
NO-Ansicht (genehmigt)
Gebäudeschnitte
Die Schnitte zeigen die genehmigte Höhenentwicklung des Gebäudes sowie die Staffelung der Geschosse in Relation zur Hanglage.
Dargestellt sind Geschosshöhen, Dachform, Geländeverlauf und die konstruktive Einbindung des Baukörpers in das Grundstück.
Alle dargestellten Schnitte entsprechen dem genehmigten Planstand.
Schnitt BB
Schnitt AA
Kellergeschoss (UG) – Genehmigter Grundriss
Das Untergeschoss umfasst funktionale Nutzräume sowie zwei großzügige Hobbyräume mit natürlichem Tageslicht. Zusätzlich sind ein Hausanschluss- und ein Technikraum vorgesehen.
Die Anordnung der Räume ermöglicht eine flexible Nutzung, beispielsweise als Arbeits-, Hobby- oder Abstellflächen. Ein integrierter Garage-und-Haus-Zugang sorgt für kurze Wege und zusätzlichen Komfort. Der Zugang ins Haus ist witterungsgeschützt über die Garage möglich.
Darstellung gemäß genehmigtem Planstand.
Das Erdgeschoss bildet den zentralen Wohn- und Essbereich des Hauses mit direktem Zugang zur Terrasse und in den Garten. Die Küche ist in unmittelbarer Nähe angeordnet und funktional in den Grundriss integriert.
Ergänzt wird das Raumangebot durch einen Abstellraum, der alternativ als Speisekammer genutzt werden kann, einen Flurbereich mit Platz für eine Garderobe sowie ein Gäste-WC. Die Erschließung ist klar und übersichtlich organisiert, der Übergang zu den Außenflächen ist barrierearm gestaltet.
Darstellung gemäß genehmigtem Planstand.
Darstellung gemäß genehmigtem Planstand.
Grundstück
Einfamilienhaus mit Baugenehmigung zu verkaufen.
Kontaktdaten:
Email: rohbau-gimmeldingen@email.de
Handy: 0157 57322069
© 2026. All rights reserved.
